Home & Decor Blogs: DIY, Interior Design & Lifestyle Ideas
How to Pick Furniture When Your Home Is Also Your Office
Thirty-six per cent of employed Australians work from home regularly. That’s the August 2025 ABS number. Roy Morgan’s survey, which counts anyone doing even a bit of paid or unpaid work from home, puts it at 46% — over 6.7 million people. Either way, we’re not going back to 2019.
And here’s the thing most furniture guides won’t tell you: it doesn’t matter how beautiful your sofa is if your back is wrecked by Thursday because you’ve been hunching over a coffee table pretending it’s a desk. Australian homes — 70% separate houses, 13% townhouses, 16% apartments, according to the 2021 Census — weren’t built to be offices. They’re being forced into the role, and the furniture inside them needs to keep up.
This covers everything from floor plans and measurements through to ergonomics, lighting, materials, and a phased timeline so you don’t blow your budget in week one and regret it by month two.
Where Things Stand
On Census day 2021, 2.5 million Australians were working from home. Pandemic, lockdowns, yes — but the habit stuck hard. Roy Morgan found that 70% of Sydney CBD workers still do at least some work from home. Melbourne sits at 65%. These aren’t people working from beachside villas. They’re in apartments, terraces, spare bedrooms, and dining rooms.
Apartments have been growing their share of Australia’s housing stock since 2016. Rooms are shrinking while the demands on them multiply. Your living room needs to host video calls at 9 am and movie night at 9 pm. The dining table goes from spreadsheets to spaghetti in the time it takes to close a laptop.
Furniture that can’t handle that daily switch is furniture that’ll frustrate you within weeks. You want pieces that reconfigure quickly, materials that don’t fall apart under constant use, and dimensions that actually fit the space you have — not the space you wish you had.
Measure First, Buy Second
Grab a tape measure and a laser measurer. Sketch the room to scale. Mark window heights, sill depths, structural columns, outlet locations, and cable routes. Especially cable routes — nothing kills a desk setup faster than discovering the nearest power point is on the wrong wall.

Work out what each room does on a weekday versus a weekend. Assign anchor pieces accordingly. Keep 750–900 mm of clear path wherever people walk regularly. Sounds tight? In a 60 m² apartment, that might mean ditching one occasional chair so there’s actual breathing room between the sofa and the balcony door. Worth it.
A few rules that save headaches:
Put work surfaces near daylight and power. Position screens perpendicular to windows — you’re fighting glare otherwise. Light-legged or wall-mounted furniture makes small rooms feel bigger because more floor is visible. Tall storage near windows kills daylight penetration. Don’t do it.
Spend ten minutes pacing the clear paths with a tape measure in hand. If you’re turning sideways or bumping things, the layout isn’t right yet.
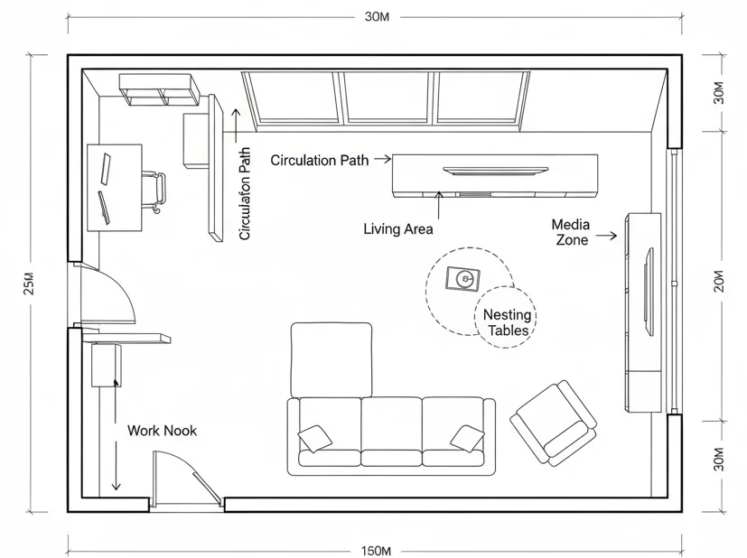
Living Room
Modular sofas are probably the single most useful buy for a room that needs to flex. Clip-together modules, removable covers, chaise depth around 1400–1600 mm. Add a mobile ottoman with lockable casters — it’s extra seating, a footrest, and a side table with a tray on top. Three uses from one piece.
Fabric choice matters more than most people realise. Polyester blends and performance wool handle the daily combination of kids, pets, and someone eating lunch between meetings. Anything too delicate looks terrible within a year. You know the type — that cream linen that photographs beautifully and then meets reality.

Nesting tables that tuck under sofa arms vanish when you don’t need them. Flip-top coffee tables at 600–700 mm height work for laptop sessions, way better than the standard coffee table height that has you curling over like a shrimp. Media units at 300–400 mm deep with cable grommets and ventilation holes keep your router and streaming gear tidy.
Wool rugs and dense weaves cut echo on calls. Full-height lined curtains absorb sound and improve thermal comfort. A six-way surge protector hidden inside the media unit cleans up the cable mess without spending much. Small things, but they compound.
Dining Table as Workstation
This works better than people give it credit for. Rectangular tables at 1400–1600 mm by 800–900 mm fit small dining rooms without swallowing the space. Round tables at 1050–1200 mm diameter seat four and eliminate corner bumps — genuinely useful if you’ve got small kids ricocheting around.
Chair seat height of 440–460 mm with a supportive backrest. You’re not doing a full eight-hour day here, but two hours in a bad chair still catches up with you. Leave 750–900 mm on the main access sides and 600 mm minimum behind chairs so they slide out without gouging the wall.

Keep screens perpendicular to windows during calls. Get a task lamp nearby that delivers 320–400 lux on the work surface for reading and paperwork. A slim bar cart — 350–450 mm deep — holds a printer and peripherals during work hours, then wheels away for dinner. If you do video calls from here, a fold-flat privacy screen stores behind the sideboard and gives you a clean background without rearranging everything.
Office Furniture Australia
Refreshing a study or spare bedroom for remote work has to happen fast for most people. Between other commitments, on a tight budget, with no room for expensive mistakes. The priority list: compact desk with cable grommets and trays, a chair with adjustable seat height and lumbar support, and ideally something that references AS/NZS 4438:1997 compliance or AFRDI testing.
Comparing all of that across a dozen retailers is tedious. You can speed things up by sourcing a nationwide kit through office furniture Australia — check stock and delivery lead times upfront, aim for consolidated shipping so you’re not dealing with three separate deliveries, and read the return policy before committing. Small things that prevent big annoyances.
Build a mini-kit: compact desk, adjustable chair, monitor arm, task lamp, cable tray. Take photos once it’s set up — if your employer has WHS obligations for remote workers, those photos are handy documentation.
What fits where:
A one-metre desk with a slim pedestal and an AFRDI-tested chair handles most bedroom nooks. A 1.2-metre sit-stand with a clamp-mounted monitor arm works in a living room corner without taking over the space. Neither is glamorous. Both are functional.
Bedroom With a Work Corner
Wall-hung desktops at 600–700 mm depth suit laptops nicely. Just make sure you’re anchoring into studs or using proper fixings — a loaded desk pulling out of plasterboard at midnight isn’t the kind of excitement anyone needs. Ladder desks give you shelves for stationery and a webcam perch while keeping a compact footprint.
The single best trick for bedrooms that double as offices: a track-mounted curtain between the desk and the bed. Pull it across at night. Work disappears. Sounds simple, and it is, but the psychological separation between “this is where I work” and “this is where I sleep” genuinely matters. People underestimate how much visible work clutter messes with their ability to switch off.
Warm-dimming lamps in the 2000–3000 K range for evenings. Under-bed drawers with full-extension runners — one for files, one for tech gear. Bedside table with integrated USB-C charging so you can ditch the extra power board near the bed.
Hallways and Odd Corners
Overlooked constantly, and they shouldn’t be. A console at 700–900 mm wide and under 400 mm deep fits most hallways. Not a permanent desk, but fine for twenty minutes of emails or a quick task.
Drop-front desks in alcoves hide work completely when closed. Wall-hung versions keep the floor clear for cleaning and make tight spaces feel less cramped. Pegboards with hooks handle daily-carry items — keys, wallet, headphones, the stuff that otherwise ends up in a pile on the kitchen bench.
Floating shelves above doorways use dead space. Nobody looks up there anyway, so it’s free storage.
If you’re working in a corridor, add a low-glare task lamp with a narrow beam. And think about trip hazards properly — recessed floor outlets or flush cable channels cost a bit to install, but prevent the laptop cable stretched across a walkway situation that’s an accident waiting to happen.
Ergonomics
Safe Work Australia recommends not sitting in the same position for more than thirty minutes without a break. That’s the easy part. Getting the physical setup right takes a bit more effort.
Chair seat height: adjustable in roughly the 420–520 mm range. Lumbar support that actually adjusts. Seat pan tilt. Products tested to AS/NZS 4438:1997, and AFRDI certification from the Australasian Furnishing Research and Development Institute, if you can find it.

Compact desks at 1000–1200 mm by 600–700 mm fit a laptop plus a 24–27 inch monitor. Sit-stand desks need keyboard heights around 680–750 mm seated and 950–1150 mm standing — adjusted to your elbow height, not some generic number on a website. Top of screen at or just below eye level, 500–700 mm from your face. Separate keyboard and mouse for laptops. Working on a laptop keyboard all day is asking for wrist problems.
Footrest if your feet don’t sit flat. Noise-cancelling headset if you’re anywhere near other humans during calls.

One useful hack for households where two people share a workstation: stick a small piece of tape or a discreet mark at your preferred chair height and desk setting. Five seconds to apply saves the daily guessing game of adjusting everything from scratch.
Lighting
Aim for 320–400 lux at the desk for standard office work. General circulation areas need about 160 lux. These are typical workplace guidance numbers for Australia. Clamp lamps and adjustable floor lamps are the most practical way to hit those targets on a small desk — you can point light exactly where it’s needed rather than flooding the room.
Worth knowing: Australia is phasing out mains-voltage halogen and tungsten filament lamps from October 2025 under new minimum energy performance standards. LEDs use roughly 75% less energy than halogens and last between 15,000 and 50,000 hours. If your house is still full of halogens, a whole-home LED swap makes financial sense now, regardless of the regulation change.
For desk work, pick lamps with a CRI (colour rendering index) above 90. Anything lower and colours look slightly off — matters if you’re reviewing designs, photos, or even just reading printed documents. Translucent blinds diffuse harsh direct sun. Place your task light opposite your dominant hand so your own shadow isn’t falling across whatever you’re working on.
Storage
Vertical. Floor-to-ceiling units with a 200–300 mm toe-kick so you can clean underneath. Adjustable shelves and internal drawers that adapt as your needs change. For corridors and tight rooms, shallow cabinets at 300–350 mm deep hold surprisingly more than you’d expect.
Storage ottomans are underrated. They hold blankets and controllers, and the ones with soft-close dampers don’t slam shut when kids drop the lid. Entry benches with lift-up tops hide shoes and school bags cleanly.
Cable management: trays or raceways under desks, power boards mounted out of sight but still reachable. Label your cables and power bricks. Sounds obsessive. You’ll appreciate it six months later when you need to swap something and aren’t untangling a nest of identical black cords. Keep a short inventory sheet for spare cables and accessories.
Materials
Newer Australian apartments are well-sealed. Good for energy efficiency, bad for furniture off-gassing because the chemicals don’t dissipate as fast. Go for E0 or E1 rated MDF or particleboard — lower formaldehyde emissions, especially important in bedrooms and small studies where air volume is limited.
Timber: look for Responsible Wood certification, the Australian programme endorsed by PEFC for sustainable sourcing. GECA (Good Environmental Choice Australia) certification for furniture, fittings, foam and mattresses means harmful substances have been kept to a minimum.
Performance fabrics with high Martindale abrasion ratings — that’s how fabric wear is measured — handle daily family use. Removable, washable covers add years to a sofa. Powder-coated steel frames resist coastal corrosion better than chrome or raw steel. If you’re within a few kilometres of the ocean, that distinction matters after a couple of summers.
Custom Made Furniture Sydney
Standard flat-pack is fine in standard rooms. But Sydney has a lot of narrow terraces and compact apartments where off-the-shelf dimensions waste space, block doorways, or leave dead zones that serve no purpose.
Custom fabrication solves this. A dining banquette with hidden bins underneath. A wall-to-wall desk built to use every millimetre. An entertainment unit shaped to fit an awkward alcove where nothing mass-produced ever would. You’re setting depth precisely, keeping exit paths clear, and adding storage in spots that standard pieces physically can’t reach.
For those awkward terrace floor plans and tight apartment layouts, local specialists like custom made furniture Sydney build to millimetre-accurate dimensions and match finishes across multiple pieces. Hidden storage compartments and tight-depth profiles transform narrow hallways where a standard sideboard would block the path entirely.
When briefing a maker, share a measured plan showing door swings, skirting profiles, and outlet locations. Specify materials early — Responsible Wood-certified plywood and low-VOC (volatile organic compound) finishes from the start, not as an afterthought. Confirm cable routing for media and work furniture, device ventilation so electronics don’t cook themselves, and soft-close hardware if you’ve got kids.
Higher upfront cost than flat-pack, yes. You’re paying for a perfect fit and a longer service life. Lead times typically run three to eight weeks. Plan accordingly.
Timeline and Budget
Doing everything at once is how people overspend and burn out. Three phases.
Weekend one: Declutter. Sketch a measured plan. Rearrange existing furniture to open 750–900 mm paths. Add a task lamp. Install basic cable trays. Test video call angles. Cost: almost nothing.
Within 30 days: Chair and desk upgrade. Monitor arm, footrest if needed. Vertical storage goes in. Rugs and curtains for acoustics. Mobile tech station if your printer roams between rooms.
60–90 days: Custom pieces ordered (accounting for lead times). Remaining lamps were swapped to LED ahead of the October 2025 halogen phase-out. Art, plants, and textiles for finishing touches.
How to Split the Budget
| Phase | What’s Covered | Percentage |
|---|---|---|
| Phase 1 — Week 1 | Task lamp, cable trays, rearranging | 5–10% |
| Phase 2 — Month 1 | Chair, desk, monitor arm, storage, rugs, curtains | 40–50% |
| Phase 3 — Months 2–3 | Custom pieces, LED swap, art, textiles | 30–40% |
| Reserve | Returns, delivery problems, surprises | 10–15% |
Set the total number before you buy anything. Keep a punch list on your phone. Review it every couple of weeks so you can book trades, place orders, and schedule deliveries around your actual life rather than scrambling when a chair breaks or a desk arrives on the wrong day.
Wrapping Up
Measurements first. Ergonomics and lighting second. Storage and styling third. That’s the order. Certifications like GECA and Responsible Wood tell you something real about what you’re bringing into a sealed home, and clear warranties protect your investment.
If you’re worried about expensive mistakes, tape furniture dimensions on the floor with painter’s tape before you buy. Test chair and desk heights with books stacked under your laptop. Try things. Keep what makes the workday smoother and the evenings more relaxed. Swap what doesn’t.